
Интуитивно понятное построение помещения. Не требует навыков дизайна и черчения
Опираясь на многолетний опыт проектирования и строительства саун от начала до конца, мы создали уникальный интеллектуальный цифровой продукт.
Спроектируйте сауну своей мечты. Наш конструктор за считанные минуты подготовит для вас чертежи и 3D-визуализацию. Навыки архитектора не требуются.

Интуитивно понятное построение помещения. Не требует навыков дизайна и черчения

AI-визуализация фотографического качества

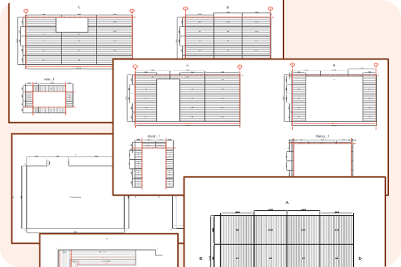
Полный комплект чертежей, необходимый для строительства сауны, а также для производства
4000x2400x2418 ммПроект
Все проекты
Построитель позволяет выбрать удобный формат работы: приобрести готовый проект без изменений, адаптировать готовое решение под свои задачи или создать индивидуальный проект с нуля. При выборе готового проекта без изменений мы также можем выполнить раскрой панелей, упаковать их и организовать доставку.
Помимо готовых решений «под ключ», вы можете приобрести панели RoHol отдельно — для ваших собственных проектов и смелых дизайнерских замыслов.
КаталогУсловия сотрудничества и формат внедрения обсуждаются индивидуально. Под разные задачи мы предлагаем разные решения — от базовой интеграции до более глубокой настройки под ваши процессы.
Работайте по проектам, готовым к реализации. Вы получаете точные чертежи, инструкцию по сборке и файлы для ЧПУ. Для проектов с панелями RoHol мы также выполняем раскрой, комплектуем и отправляем заказ. Это сокращает сроки сдачи объекта, помогает избежать ошибок на монтаже и делает весь процесс более предсказуемым.
Наш построитель — это не просто красивая визуализация, а полное понимание того, как проект будет реализован на практике. Система автоматически учитывает нормы, технические ограничения и формирует спецификации материалов, освобождая вас от сложной технической работы и позволяя сосредоточиться на концепции и идеях.
Если ваш проект выполнен с использованием панелей RoHol, мы берём на себя всю сложность и ответственность за раскрой и обработку каждой панели. Вы получаете комплект деталей и понятную инструкцию, по которой монтаж выполняется быстро и без подгонки, доработок и лишних усилий.
Новый канал привлечения клиентов и быстрые спецификации для заказчиков. Ваши продукты точно интегрируются в проекты, отражаются в сметах и автоматически попадают в ведомости. Это помогает заказчикам оформлять заказы, снижать перерасход материалов и выбирать решения, которые гарантированно подходят под проект.
Мы создаём экосистему, в которой проверенные инженерные знания и интеллектуальные технологии работают на общий результат: эффективность, качество и рост бизнеса. Мы открыты к интеграции, адаптации под ваши задачи, фирменному стилю, добавлению каталогов продукции и совместному развитию сервиса.